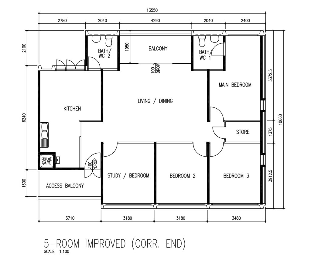
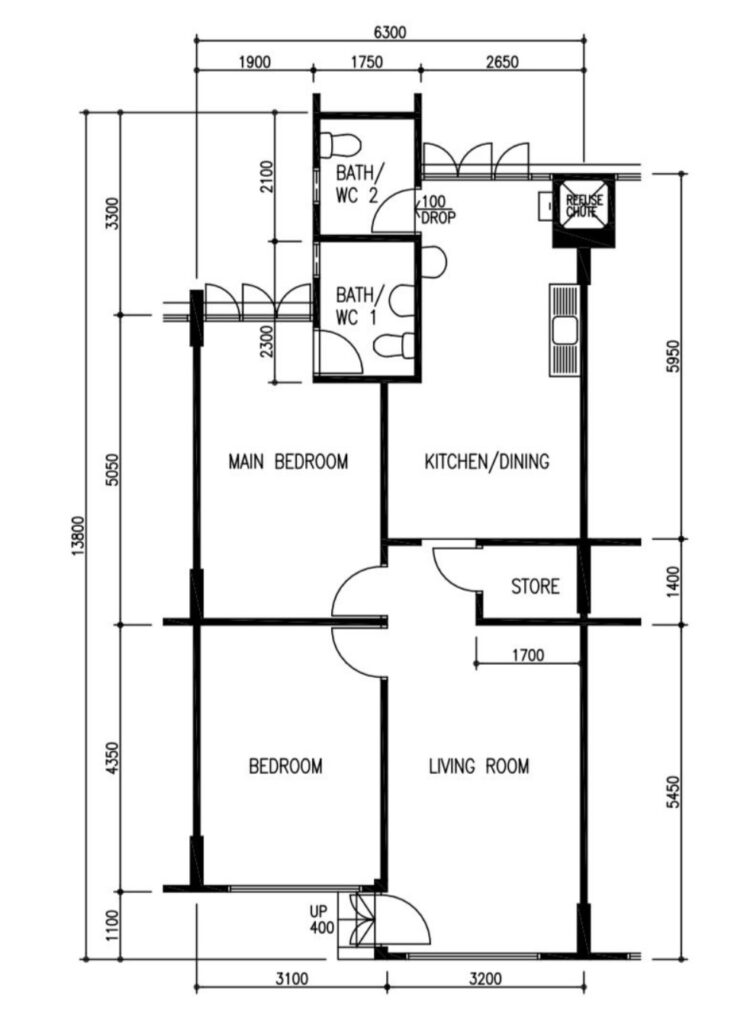
What is a Floor Plan?
Floor plans are scale drawings that show the relationship between rooms, spaces and physical features viewed from above. They provide a way to visualize how people will move through the space.

There are 3 types of walls:
- Structural/Load bearing walls (cannot be demolished)
- Gable-end walls (cannot be demolished)
- Regular/Partition walls (can be demolished)

- Structural / Load Bearing Walls
Identified as bold and thicker lines. Structural or load bearing walls are responsible for the structural integrity of the building. These walls are fixed and cannot be demolished. The walls are reinforced and removing it damages the structure of the building.

- Gable-end Walls
Identified as a pair of lines with strikethrough in between. Gable-end walls serve as a purpose protect your home from sun and heat. They have awnings on the exterior and are common for most common HDB units. These walls cannot be demolished.

- Regular / Partition Walls
Identified as a thin pair of lines in between rooms. These walls can be demolished to make way for more space or open concept designs for your home. Take note that you will need approval from HDB, MCST/BCA (condo) and engage a P.E (Professional Engineer) to endorse your hacking permit.

Before buying a home, do take note of the floor plan and identify which walls can or cannot be demolished. Understanding your layout better will allow you to have more creativity when it comes to designing it. Finally, demolishing a wall without approval from relevant authorities will subject you to them getting you to reinstate it back to its original condition so be extra vigilant!